IMG_7193 IMG_7193

Abdul Alim Park

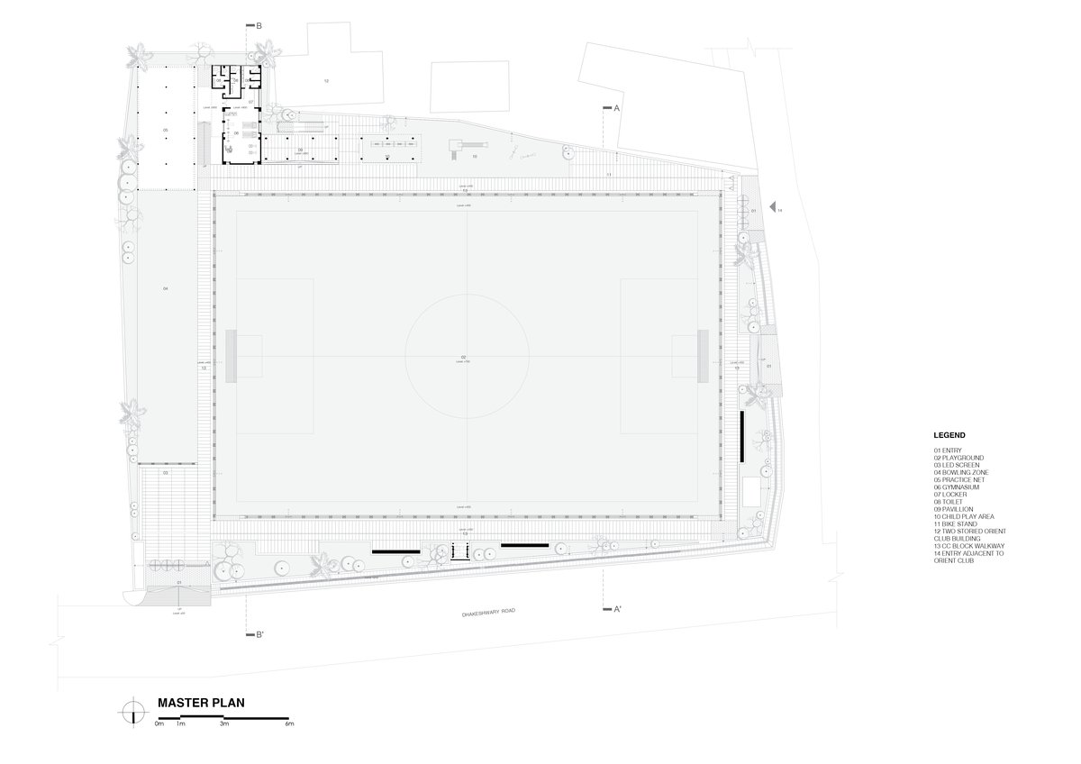
“Why are public green spaces not working—and how do we overcome this?”- was the provocation behind Jol Shobuje Dhaka, an award-winning initiative led by the Shatotto JPZ consortium under Dhaka South City Corporation. Among its sites, the Shahid Haji Abdul Alim Playground became a canvas for reimagining urban greenery.

Research revealed a key barrier: solid boundaries discouraged public engagement. In response, the design embraced porosity—visual and spatial openness that invites rather than excludes. The playground now breathes into its surroundings, dissolving edges and fostering connection.

Rainwater trenches line the walkways, quietly sustaining the landscape and reinforcing ecological resilience. Beyond infrastructure, the space nurtures curiosity: children encounter native flora and learn the rhythms of Bangladesh’s six seasons, deepening their bond with place.

Adults and youth gather under shaded pockets, sharing tea and conversation. A café-library and open terrace overlook the ground, offering layered experiences of rest, reflection, and community.

This is not just a park—it is a pedagogical and social landscape. A gentle intervention that reclaims public space as a site of learning, belonging, and renewal. Led by Ar. Rafiq Azam, the project stands as a model for how Dhaka might breathe again—green, open, and alive.

Architectural Consultants: Shatotto - Architecture for Green Living, Sachetan Sthapatya & JPZ JV
Lead Architect: Rafiq Azam

Associate Architect Team:
Adhora Sharmin, Arifur Rahman Kaushik, Anika Asif, Nasrin Akter, Subham Jain, Afsara Tasnim, Jowairia Hossain Mou, Bibekananda Roy, Al Mujadudur Rahman, Md. Lutfor Rahman, Md. Akhtar Hossain, Nazrul Islam, Mohayminul Islam.

Architectural Associates:
Cube Inside Design Ltd. – Khandaker Asifuzzaman, Md. Sharifuzzaman, Ahmed Firoz Ul Haque, Md. Sakhawat Hossain, Arifuzzaman, Manjima Shabnam, Tasnuva Rahman, Kazi Asadullah Imran.

Overall Support: Hasibur Rahman Manik (Local Councillor)
Client: Dhaka South City Corporation
Construction Company: NTKTA-AT
Photo Courtesy: Rafiq Azam, Mike Kelly & Will Scott