49 courtyard 1 49 courtyard 1

DESCO Head Office

In an era of evolving work cultures, office spaces must accommodate a spectrum of activities—from collaboration and creativity to concentration and confidentiality. They must also respond to the privileges and demands of the natural environment: light, wind, and thermal comfort. The DESCO Head Office was conceived as a flexible, inclusive workspace—sensitive to climate, culture, and context.

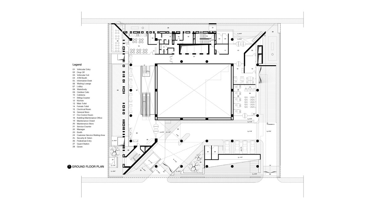
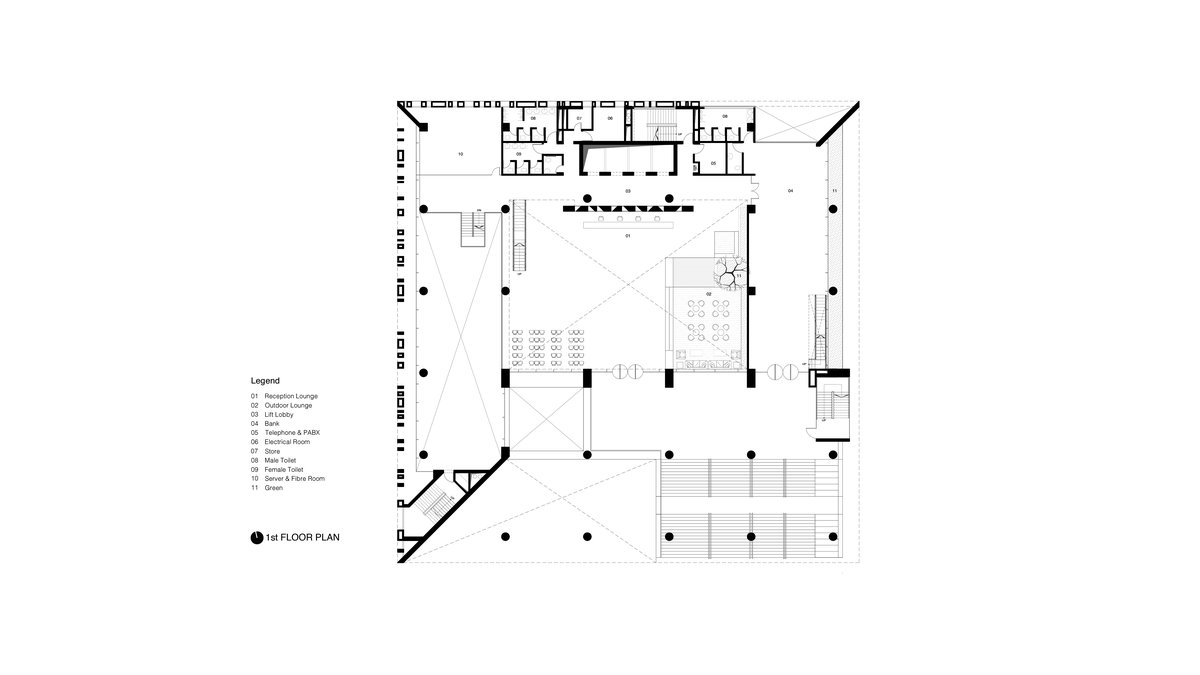
Located in the tropical climate of Bangladesh, the design prioritizes environmental responsiveness. Deep shading and perforated screens mitigate harsh sunlight, ensuring thermal comfort and diffused illumination throughout the day. The building is organized around a central courtyard—cut at a 45° angle to allow a lofted window that opens the interior to sky and breeze. A water feature and dense greenery within the courtyard create a calming microclimate, while surrounding shared amenities—library, gym, café—foster community and well-being.

Materiality reinforces the environmental ethos. Exposed concrete, glass, and aluminum define the palette, with unpainted concrete walls enhancing breathability and reducing maintenance. The massing is expressed as a sculpted cube of 172 feet, carved to accommodate an elevated open courtyard within a consistent footprint—leveraging the commercial zoning to introduce spatial generosity.

The project was awarded first place in the national competition’s initial phase, designed in joint venture with Shatotto under the leadership of Ar. Rafiq Azam. It stands as a model for climate-conscious, human-centered office design—where form, function, and atmosphere converge.

Project: DESCO Head Office

Client: DESCO

Project type: Commercial Project - Open Architectural Design Competition organized by IAB and DESCO

Collaboration: In JV with Shatotto

Status: Winner in the first phase, Unbuilt

Location: Nikunja-2, Dhaka

Built Area: 24057 sqm

Timeline: 2015

Team Leader: Md Rafiq Azam

Design Principal: Khandaker Ashifuzzaman, Shakhawat Hossain Rocky

Team members: Arif Uz Zaman, Md Sharifuzzaman Sajal, Nazmul Islam Sourav, Niloy Nath Saju, Khondaker Muhibur Rahman