WhatsApp Image 2022-08-26 at 9.44.45 PM (3) WhatsApp Image 2022-08-26 at 9.44.45 PM (3)

Shibchar Club House

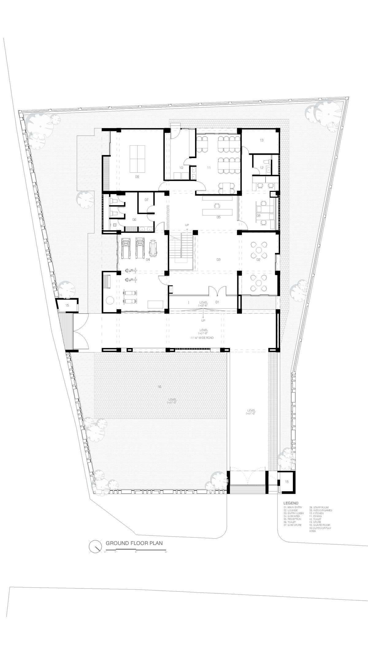
Set within a historically rich urban fabric of Shibchar, Madaripur, the sports club is conceived as a quiet intervention—one that stands out through form, yet blends through material. Inspired by the surrounding art and sculpture, the building adopts a staggered massing, creating a tactile and approachable presence.

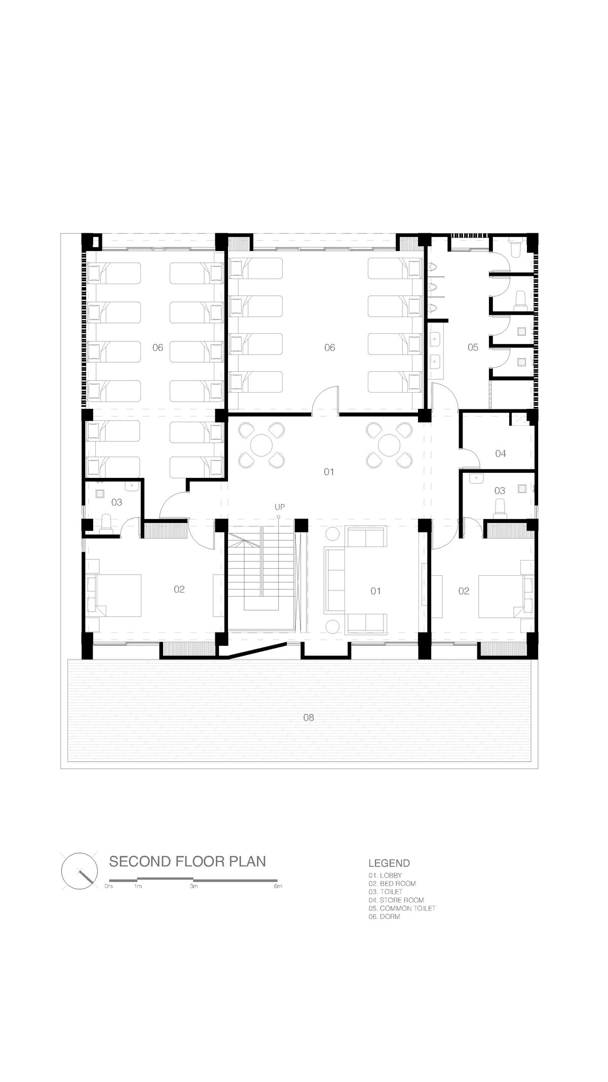
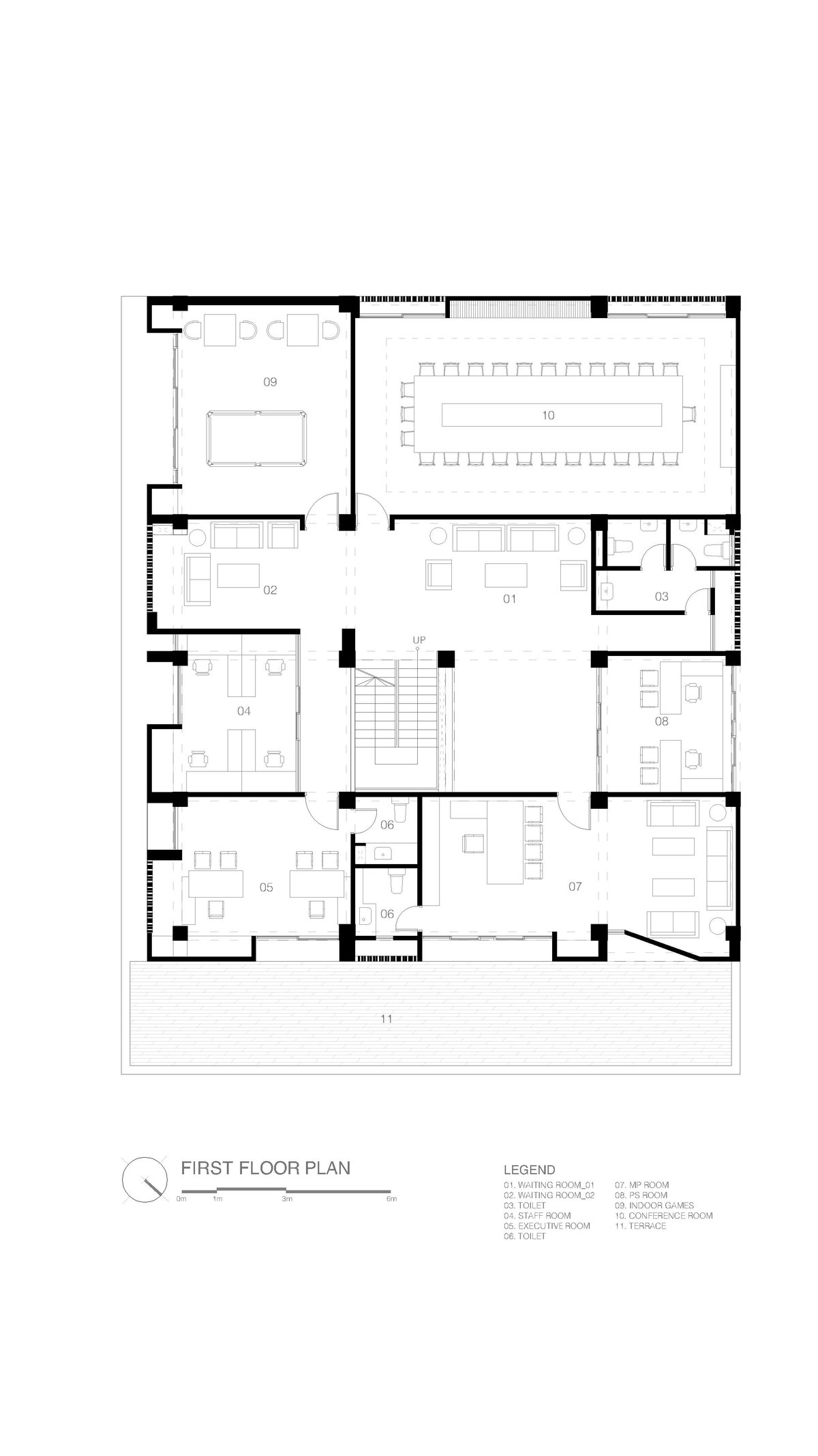
Terraces are integrated to foster informal communal activity, offering layered connections to the nearby urban center. These open platforms become extensions of the street—spaces for pause, interaction, and visual engagement.

Materiality is restrained. Brick replaces glass as the dominant surface, aligning with the local aesthetic. With the tone of muted grey, the brick retains the imprint of shuttering—adding texture and depth, reinforcing the building’s sculptural identity.

Rather considering the building as a conventional sports facility—it is a contextual response where the place becomes an accessible one for everyone with a very measured scale and prportion. A structure shaped by its surroundings, where architecture becomes part of the cultural landscape.

Project Name: Shibchar Club House

Location : Shibchar, Madaripur

Client : Madaripur Zila Parishad.

Consultants : Cubeinside Design ltd.

Land Area : 1414 sqm

Total Built Area : 1200 sqm

Architect : Md. Shakhawat Hossain

Associate Architect : Khandaker Ashifuzzaman

Design Team : Sumaiya Azmi, Faria Nur Munia

Structural design : DDS

Plumbing Consultant : DDS

Electrical Consultant : DDS

Construction Supervision : Madaripur Zila Parishad

Project cost :

Design Timeline : 2020-2021