Raw Nation JFP Outlet Raw Nation JFP Outlet

Raw Nation JFP

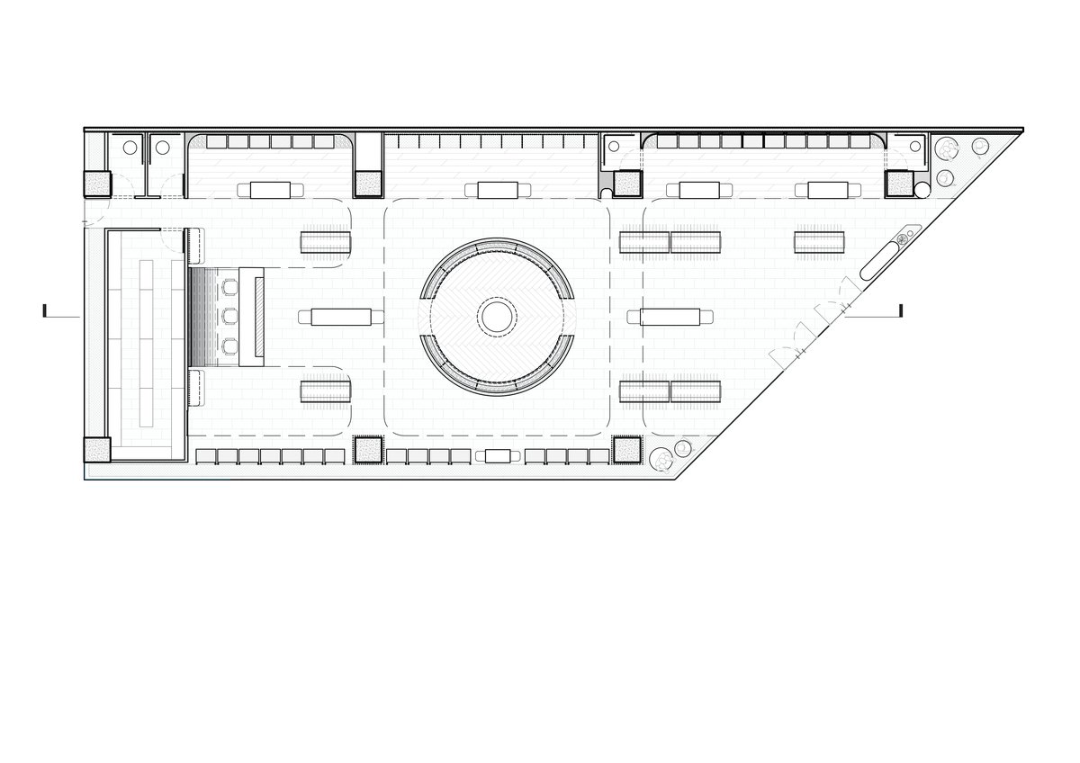
Raw Nation, a premium clothing brand for men and women, embodies character, endeavour, and the achievement of rawness balanced with humility and dedication to craft. The interior design translates this ethos into space, where rugged expression meets restraint to form a refined, formal language. Walls finished in skim coat create an infinite, organic backdrop—raw yet textured, avoiding repetition or the sterility of tiles. Grey flooring provides neutrality, while black metal frames against the walls sharpen contrast, ensuring products remain the focal point.

At the heart of the showroom lies the Denim Gallery, conceived as a circular enclosure defined by slender metal bars. Its base of glass blocks introduces transparency while maintaining separation, and a curved ceiling above forms a cannon-like effect, dramatizing the centerpiece. Subtle curves in ceiling and lighting fixtures temper rawness with humility, while brand colours—blue and Raw Nation Pink—punctuate the neutral palette. Intelligent lighting enhances ambiance, elevating retail into an immersive, character-driven experience.

Project: Raw Nation

Client: Raw Nation

Project type: Retail Interior Design

Status: Built

Location: Jamuna Future Park, Dhaka

Built Area: 240 sqm

Timeline: 2025

Design Principal: Shakhawat Hossain Rocky, Khandaker Ashifuzzaman

Team members: Md Jahid Hossain, Naimul Hassan Ripon

Photographs: Prantography